Back Dykes, Abernethy, PH2
Offers over £205,000
(Sold Subject To Contract)
2
1
1
Key Features:
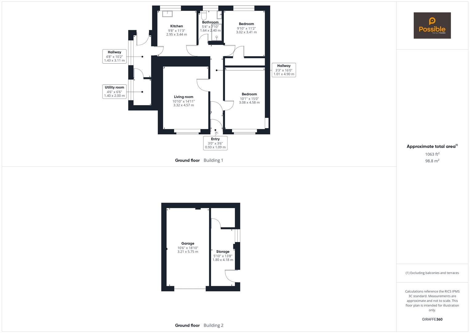
- Charming two-bedroom cottage
- Extensively modernisded throughout
- Bright and spacious living room
- Modern fitted kitchen with integrated appliances
- Two well-proportioned double bedrooms
- Contemporary shower room
- Oil central heating & double glazing
- Large gravel driveway with ample parking
- Detached garage with additional storage
- Generous rear garden
Summary:
Situated within the charming and historic village of Abernethy, this beautifully presented two-bedroom cottage offers spacious single-level living along with generous outdoor space and a detached garage.The property opens into a welcoming entrance hallway which leads through to a bright and comfortable living room, providing an ideal space for relaxing or entertaining. The modern kitchen has been tastefully finished with sleek units, integrated appliances and ample worktop space, creating a practical and stylish environment for everyday living. There are two well-proportioned double bedrooms, both enjoying plenty of natural light and offering flexible accommodation for family living, guests or home working. A contemporary shower room serves the home. The property also benefits from a useful utility room, providing additional storage and practicality. Externally, the cottage enjoys a generous gravel driveway offering ample off-street parking, along with a detached garage and additional storage area. The surrounding garden space is well maintained and provides a pleasant outdoor setting ideal for relaxing or gardening. This attractive home combines modern interiors with traditional charm, making it an excellent opportunity for a range of buyers seeking village living within easy reach of Perth.
Full Details:
Energy Performance Certificate
Click here to view the Energy Efficiency Rating and Environmental Impact Rating for this property.
Viewing & Disclaimer:
Please contact us on 01738 26 00 35 if you wish to arrange a viewing appointment for this property, or require further information.
Possible Estate Agents - PH1 endeavour to maintain accurate depictions of properties in Virtual Tours, Floor Plans and descriptions, however, these are intended only as a guide and purchasers must satisfy themselves by personal inspection.

