Beech Court, Alyth, PH11
Offers over £137,500
(Sold Subject To Contract)
3
1
1
Key Features:
- Well-presented three-bedroom home
- Quiet residential cul-de-sac location
- Bright and spacious living room
- Patio doors leading to rear garden
- Modern fitted dining kitchen
- Three well-proportioned bedrooms
- Contemporary family bathroom
- Enclosed rear garden mainly laid to lawn
- Private entrance area and outdoor storage
- Ideal for first-time buyers or families
Summary:
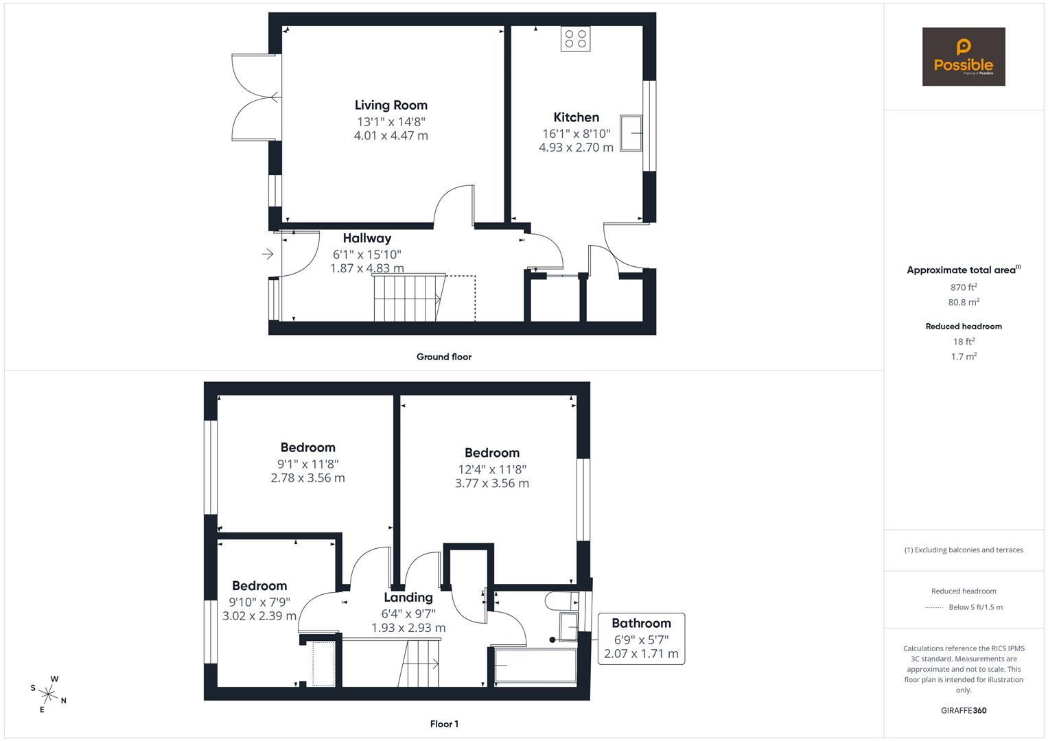
Located within a quiet residential cul-de-sac in the charming town of Alyth, 3 Beech Court is a well-presented three-bedroom home offering bright and comfortable accommodation ideally suited to families, first-time buyers or those seeking a peaceful setting within easy reach of local amenities.The ground floor features a welcoming hallway leading to a spacious living room, beautifully presented and filled with natural light from large windows and patio doors that open directly onto the rear garden. This generous space provides an excellent setting for relaxing or entertaining. The kitchen is well laid out with a range of fitted units, integrated appliances and ample space for a dining table, creating a practical and sociable area for everyday living. Upstairs, the property offers three well-proportioned bedrooms, including a generous principal bedroom and two further rooms that could equally serve as children’s bedrooms, guest accommodation or a home office. A modern family bathroom completes the upper level. Externally, the property benefits from a fully enclosed rear garden mainly laid to lawn, providing an ideal outdoor space for families, pets or summer entertaining. To the front there is a private entrance area and useful external storage. This attractive home combines comfortable living space with a peaceful location, making it a fantastic opportunity within the popular Perthshire town of Alyth.
Full Details:
Energy Performance Certificate
Click here to view the Energy Efficiency Rating and Environmental Impact Rating for this property.
Viewing & Disclaimer:
Please contact us on 01738 26 00 35 if you wish to arrange a viewing appointment for this property, or require further information.
Possible Estate Agents - PH1 endeavour to maintain accurate depictions of properties in Virtual Tours, Floor Plans and descriptions, however, these are intended only as a guide and purchasers must satisfy themselves by personal inspection.

