Buchany Burn Road, Auchterarder, PH3
Offers over £199,500
(Sold Subject To Contract)
2
1
1
Key Features:
- Modern mid-terrace home in sought after area
- Bright open-plan kitchen, dining and living area
- Stylish modern kitchen with integrated appliances
- French doors to private rear garden
- Two double bedrooms with built-in storage
- Additional office / nursery / dressing room
- Contemporary bathroom plus ground-floor WC
- Fully enclosed garden with patio
- Allocated parking
- Move-in ready and energy-efficient
Summary:
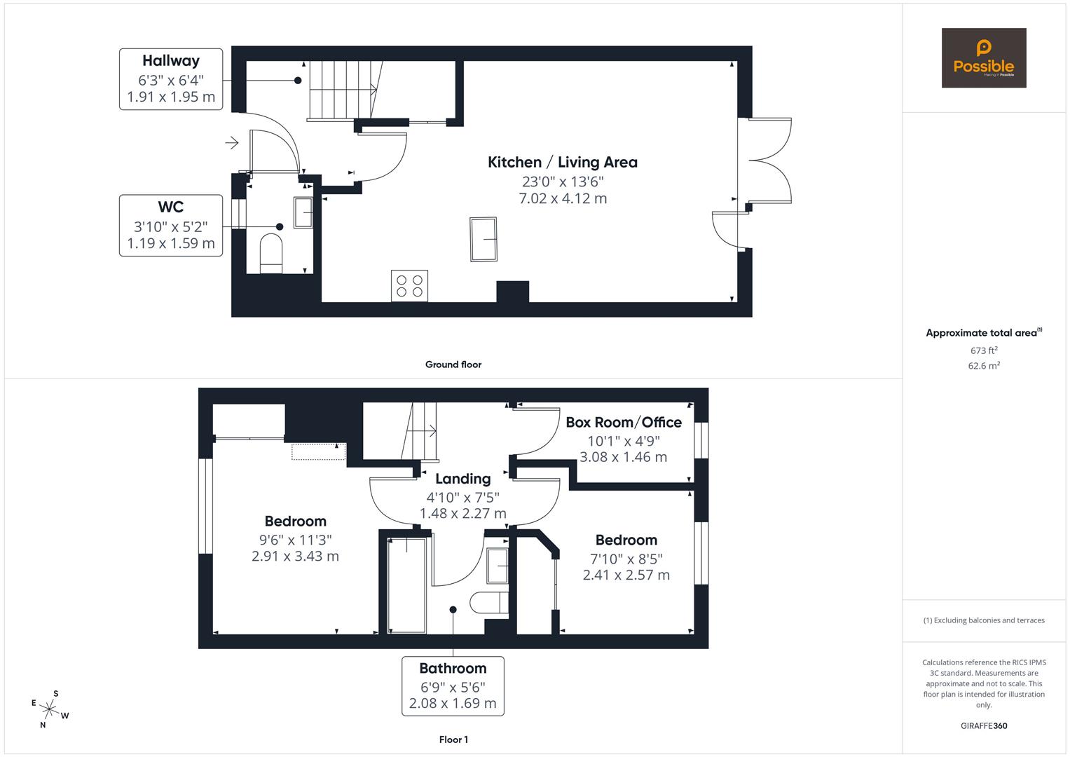
Located in a modern, family-friendly development in Auchterarder, 9 Buchany Burn Road is a beautifully presented mid-terrace home offering a fantastic blend of style, comfort and practicality. The ground floor welcomes you into a bright hallway with handy WC before opening into a stunning open-plan kitchen, dining and living area. This impressive space features contemporary units, integrated appliances, generous worktop space and a seamless flow into the living area, where French doors draw in natural light and open directly to the private rear garden-ideal for entertaining, relaxing and everyday family living.Upstairs, the property offers two well-proportioned double bedrooms, both finished in fresh, neutral décor and featuring built-in storage. A third room provides the perfect solution for a home office, nursery or dressing room, adding superb flexibility. The family bathroom is modern and stylish, fitted with a bath and overhead shower, sleek tiling and crisp white sanitaryware. Externally, the fully enclosed rear garden provides a safe and sunny outdoor retreat, with a lawn and patio area for outdoor dining. The property also benefits from allocated parking and attractive kerb appeal. Energy-efficient, move-in ready and located in one of Auchterarder’s most desirable residential pockets, this is a superb home suited to first-time buyers, young families or those seeking a low-maintenance, contemporary property in a highly convenient location.
Full Details:
Energy Performance Certificate
Click here to view the Energy Efficiency Rating and Environmental Impact Rating for this property.
Viewing & Disclaimer:
Please contact us on 01738 26 00 35 if you wish to arrange a viewing appointment for this property, or require further information.
Possible Estate Agents - PH1 endeavour to maintain accurate depictions of properties in Virtual Tours, Floor Plans and descriptions, however, these are intended only as a guide and purchasers must satisfy themselves by personal inspection.

