Coupar Angus Road, Blairgowrie, PH10
Offers over £179,950
(SOLD)
4
2
Key Features:
- Generous 4-bedroom maisonette
- Bright and spacious living rooms
- Dining kitchen with range-style cooker
- Beautiful bathroom with separate shower
- Separate study/home office
- Period features including high ceilings
- Gas central heating & double glazing
- Private area of garden
- Off-street parking
- Within easy reach of local amenities
Summary:
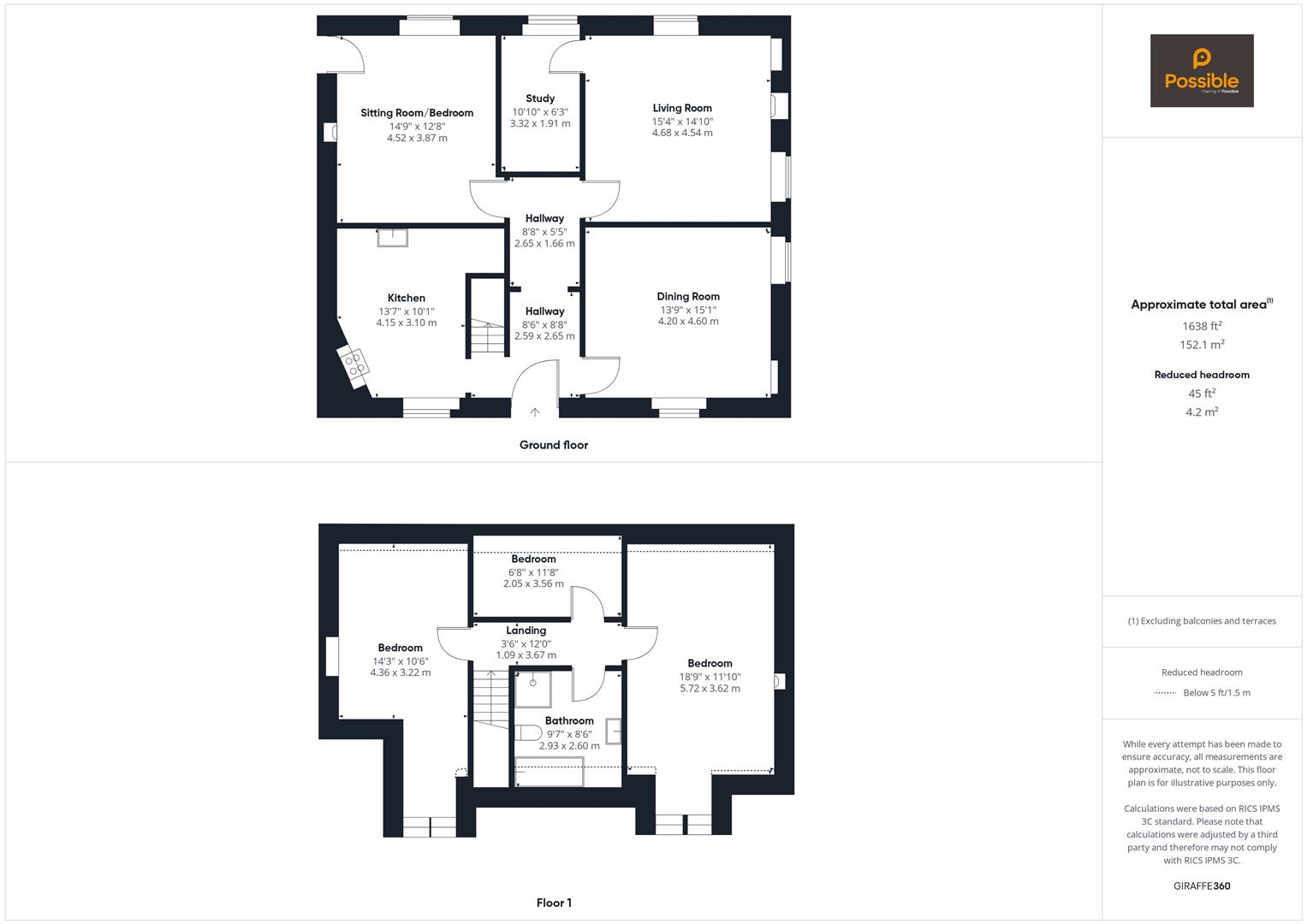
Set within a charming period building, 2 Coupar Angus Road is a beautifully presented four-bedroom maisonette offering space, character, and style across two floors. The property’s traditional exterior is complemented by generous room sizes and elegant features throughout. On the ground floor, you'll find a spacious living room—perfect for entertaining or relaxing—along with a cosy study ideal for home working and a versatile double bedroom/dining room. The well-appointed kitchen boasts a range-style cooker and vibrant splashback tiles that add personality and warmth. Upstairs, three bedrooms are served by a lovely family bathroom featuring a freestanding bathtub, separate shower enclosure, and Velux window drawing in natural light. Characterful touches like deep skirting boards, sash windows, original fireplaces, and high ceilings create a unique and welcoming atmosphere. The property also benefits from a private garden with mature planting and a shed, providing a tranquil spot to enjoy the outdoors. Off street parking is offered via double driveway. Located close to the heart of Blairgowrie, this home offers the perfect blend of period charm and modern comfort. With ample space and flexible living, it’s ideal for professionals, families or those seeking a serene retreat with easy access to local amenities and countryside walks.
Full Details:
Energy Performance Certificate
Click here to view the Energy Efficiency Rating and Environmental Impact Rating for this property.
Viewing & Disclaimer:
Please contact us on 01738 26 00 35 if you wish to arrange a viewing appointment for this property, or require further information.
Possible Estate Agents - PH1 endeavour to maintain accurate depictions of properties in Virtual Tours, Floor Plans and descriptions, however, these are intended only as a guide and purchasers must satisfy themselves by personal inspection.

