Causewayend, Blairgowrie, PH13
Offers over £87,950
1
1
1
Key Features:
- Charming one-bedroom cottage
- Spacious and bright living room with fireplace
- Modern fitted kitchen with rear garden access
- Large double bedroom with built-in storage
- Contemporary bathroom with shower over bath
- Private enclosed area of rear garden
- Double glazing and gas central heating
- Quiet residential street in the town centre
- Move-in condition throughout
- Ideal for first-time buyers or downsizers
Summary:
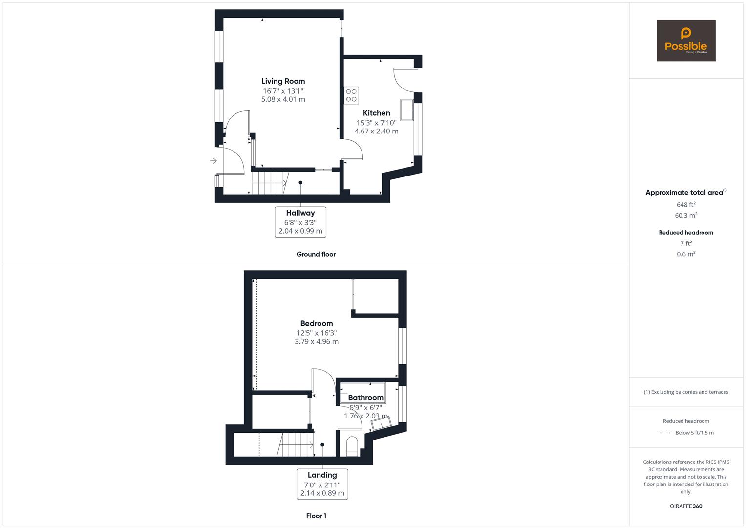
Charming and full of character, 28 Causewayend is a delightful one-bedroom cottage located in the heart of Coupar Angus. This well-presented home offers comfortable living with generous space, bright interiors, and a private garden. Perfect for first-time buyers, downsizers, or those looking for a peaceful retreat.The entrance hallway opens into a bright and welcoming living room with dual-aspect windows, a feature fireplace, and plenty of room for both seating and dining. The kitchen sits to the rear, fitted with wall units, ample worktop space, and access to the shared garden. The layout creates an easy flow and a comfortable space for everyday living. Upstairs, the large bedroom is beautifully proportioned and offers plenty of space for furniture along with built-in storage. The bathroom includes a three-piece suite with a shower over the bath and a frosted window for natural light. Outside, the private area of rear garden is fence enclosed for privacy, with a shared drying green which is mainly laid to lawn. The property also benefits from gas central heating and double glazing. With its combination of charm, space, and convenience, this cottage makes a fantastic home in a friendly, well-connected community.
Full Details:
Energy Performance Certificate
Click here to view the Energy Efficiency Rating and Environmental Impact Rating for this property.
Viewing & Disclaimer:
Please contact us on 01738 26 00 35 if you wish to arrange a viewing appointment for this property, or require further information.
Possible Estate Agents - PH1 endeavour to maintain accurate depictions of properties in Virtual Tours, Floor Plans and descriptions, however, these are intended only as a guide and purchasers must satisfy themselves by personal inspection.

