Davidson Crescent, Blairgowrie, PH13
Offers over £128,000
(Sold Subject To Contract)
2
1
1
Key Features:
- Two double bedrooms
- End Terraced
- Spacious 17ft living room
- Modern wall-mounted electric fire
- Fitted kitchen with garden access
- Contemporary bathroom with shower
- Generous rear patio and decking
- Garden summer house
- Double glazing
- Popular residential location
Summary:
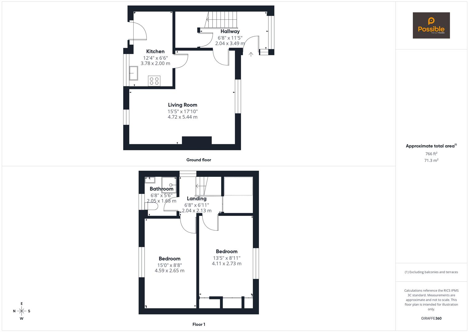
Located within a popular residential area of Coupar Angus, 14 Davidson Crescent is a well-presented two-bedroom end terraced home offering bright accommodation, private gardens and a practical layout ideal for first-time buyers, downsizers or small families.The ground floor opens into a welcoming hallway leading to a generous living room measuring over 17 feet in length. This spacious area provides ample room for both lounge and dining furniture and is enhanced by a contemporary wall-mounted electric fire, creating an attractive focal point. The kitchen sits to the rear and features a range of fitted units, good worktop space and direct access to the rear garden. Upstairs, the property offers two well-proportioned double bedrooms, both benefiting from fitted storage. The accommodation is completed by a modern shower room. Externally, the rear garden has been designed for low maintenance, with a large paved patio area, raised decking and a charming summer house providing an ideal space for relaxing or entertaining. To the front, the property enjoys a neat garden area and a pleasant outlook within this established residential setting. With approximately 766 sq ft of accommodation, double glazing and a practical layout throughout, this attractive home offers comfortable living in a convenient and well-connected location.
Full Details:
Energy Performance Certificate
Click here to view the Energy Efficiency Rating and Environmental Impact Rating for this property.
Viewing & Disclaimer:
Please contact us on 01738 26 00 35 if you wish to arrange a viewing appointment for this property, or require further information.
Possible Estate Agents - PH1 endeavour to maintain accurate depictions of properties in Virtual Tours, Floor Plans and descriptions, however, these are intended only as a guide and purchasers must satisfy themselves by personal inspection.

