Rosemount Park, Blairgowrie, PH10
Offers over £247,500
(Sold Subject To Contract)
3
1
1
Key Features:
- Detached bungalow
- Three well-proportioned bedrooms
- Fitted kitchen
- Separate utility room
- Family bathroom with bath
- Gas central heating
- Private rear garden laid mainly to lawn
- Driveway and garage
- Quiet residential location
- Close to local amenities
Summary:
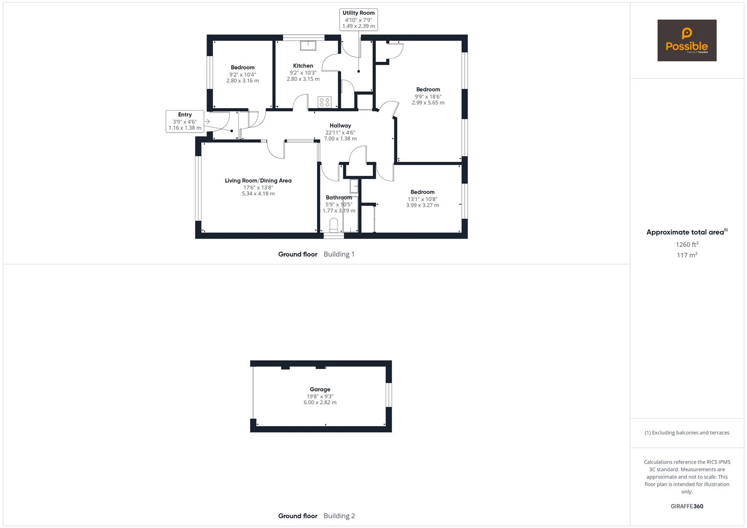
11 Rosemount Park is a well-proportioned detached bungalow set within a quiet and sought-after residential area of Blairgowrie. Offering spacious accommodation all on one level, the property is ideally suited to families, downsizers or buyers seeking comfortable, accessible living. The accommodation comprises a welcoming entrance vestibule leading into a central hallway. There is a generously sized living room, providing excellent flexibility for formal and informal living or dining. The fitted kitchen offers good storage and worktop space and is complemented by a useful adjoining utility room with external access.The property benefits from three well-proportioned bedrooms, all enjoying pleasant outlooks, along with a family bathroom. Additional storage is available throughout the home. Externally, the bungalow sits within well-maintained garden grounds, including a private rear garden laid mainly to lawn, a driveway providing off-street parking for several cars, and a garage. This attractive home offers space, versatility and a peaceful setting close to local amenities.
Full Details:
Energy Performance Certificate
Click here to view the Energy Efficiency Rating and Environmental Impact Rating for this property.
Viewing & Disclaimer:
Please contact us on 01738 26 00 35 if you wish to arrange a viewing appointment for this property, or require further information.
Possible Estate Agents - PH1 endeavour to maintain accurate depictions of properties in Virtual Tours, Floor Plans and descriptions, however, these are intended only as a guide and purchasers must satisfy themselves by personal inspection.

