Back Street, Bridge Of Earn, PH2
Offers over £85,000
(Sold Subject To Contract)
1
1
1
Key Features:
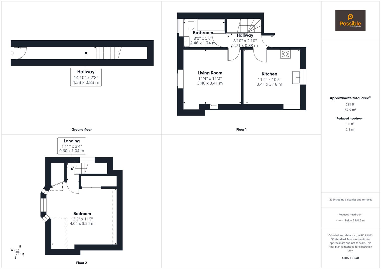
- Beautifully refurbished one-bedroom maisonette
- Attractive traditional stone exterior
- Bright living room with period fireplace
- Modern dining kitchen with ample workspace
- Contemporary bathroom with shower-over-bath
- Large top-floor bedroom with dormer windows
- Fresh neutral décor and new flooring throughout
- Gas central heating
- Move-in-ready condition
- Located in the heart of Bridge of Earn
Summary:
Fetteresk is a charming and beautifully refurbished one-bedroom maisonette located in the heart of the ever-popular village of Bridge of Earn. Blending traditional stone-built character with a fresh, modern interior, this attractive home is an ideal choice for first-time buyers, downsizers, or those seeking an easy-to-maintain holiday home.Set across two floors, the accommodation is bright, inviting, and thoughtfully finished. The first floor offers a spacious living room featuring a period fireplace and a deep-set window providing plenty of natural light. The newly fitted dining kitchen is sleek and contemporary, offering generous worktop space, modern units, and room for appliances. A stylish bathroom with fresh white décor and a shower-over-bath completes this level. The upper floor hosts a superb double bedroom extending the full width of the property. With dormer windows offering pleasant views, newly fitted carpets, and excellent built-in storage, it offers an impressive and tranquil retreat. Having undergone extensive upgrades, the property is presented in move-in condition, with neutral décor throughout, modern lighting, quality flooring, gas central heating and double glazing. On-street parking is available directly outside, and all village amenities are just a short stroll away. Fetteresk combines character, convenience, and modern comfort-an appealing home in a sought-after community.
Full Details:
Energy Performance Certificate
Click here to view the Energy Efficiency Rating and Environmental Impact Rating for this property.
Viewing & Disclaimer:
Please contact us on 01738 26 00 35 if you wish to arrange a viewing appointment for this property, or require further information.
Possible Estate Agents - PH1 endeavour to maintain accurate depictions of properties in Virtual Tours, Floor Plans and descriptions, however, these are intended only as a guide and purchasers must satisfy themselves by personal inspection.

