Main Street, Bridge Of Earn, PH2
Offers over £105,000
2
1
1
Key Features:
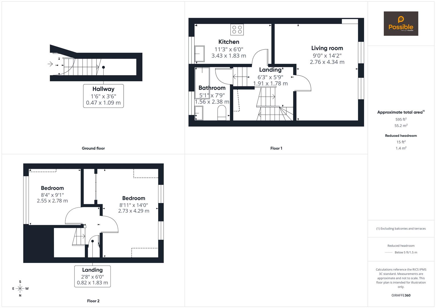
- Two-bedroom maisonette
- Accomoodation over two floors
- Bright and spacious living room
- Modern fitted kitchen
- Bathroom with three-piece suite
- Two well-proportioned bedrooms
- Attractive views
- Walking distance to amenities
- Central village location
- Gas central heating & DG
Summary:
Located in the heart of the highly sought-after village of Bridge of Earn, this charming two-bedroom maisonette offers spacious accommodation across two levels along with attractive views. Accessed via a private entrance to the rear of the building, the property opens into a hallway with stairs leading to the main living accommodation. The first floor features a bright and well-proportioned living room with large windows that allow for plenty of natural light and pleasant outlooks over the surrounding area. A modern fitted kitchen offers a range of units, worktop space and integrated appliances, creating a practical and functional cooking area. The bathroom is also located on this level and is fitted with a three-piece suite. The upper floor provides two comfortable bedrooms, both benefiting from good proportions and natural light, with one enjoying particularly attractive views. Externally, the property is ideally positioned within the centre of the village with local shops, cafés and amenities all within easy walking distance. On-street parking is available nearby. This property presents an excellent opportunity for first-time buyers, investors or those looking for a convenient village lifestyle within easy reach of Perth.
Full Details:
Energy Performance Certificate
Click here to view the Energy Efficiency Rating and Environmental Impact Rating for this property.
Viewing & Disclaimer:
Please contact us on 01738 26 00 35 if you wish to arrange a viewing appointment for this property, or require further information.
Possible Estate Agents - PH1 endeavour to maintain accurate depictions of properties in Virtual Tours, Floor Plans and descriptions, however, these are intended only as a guide and purchasers must satisfy themselves by personal inspection.

