Salers Way, Perth, PH1
Offers over £235,000
(Sold Subject To Contract)
3
2
1
Key Features:
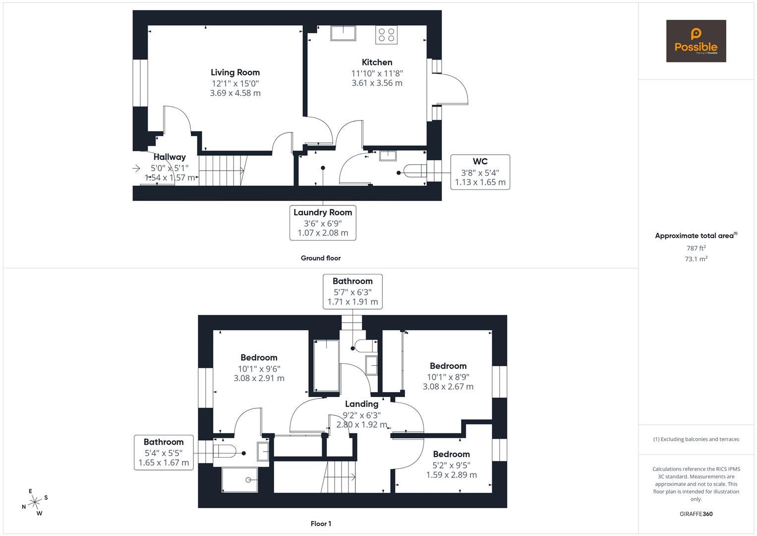
- Three well-proportioned bedrooms
- Bright and spacious living room
- Modern dining kitchen with French doors
- Ground floor WC and separate utlity room
- Family bathroom plus en-suite shower room
- Enclosed, low-maintenance rear garden
- Garden shed for storage
- Neutral décor throughout
- Double glazing and gas central heating
- Allocated parking to front
Summary:
This well-presented three-bedroom home offers modern, comfortable living in a popular residential area of Huntingtower, just outside Perth. The property is bright, well laid out and ideal for families, first-time buyers or those looking for a low-maintenance home.The ground floor welcomes you with a spacious living room, finished with neutral décor and wood-effect flooring, creating a warm and inviting space for relaxing or entertaining. To the rear, the contemporary dining kitchen is fitted with sleek grey units, integrated appliances and ample worktop space, with room for dining. French doors lead directly from the kitchen to the enclosed rear garden, allowing natural light to flood the space and providing an easy connection to outdoor living. A convenient WC and separate utility room complete the ground floor accommodation. Upstairs, the property offers three well-proportioned bedrooms. The principal bedroom is a generous double, while the remaining two rooms are ideal for children, guests or home working. The family bathroom is modern and stylish, featuring a walk-in shower, complemented by an additional en-suite shower room for added convenience. Externally, the enclosed rear garden is mainly laid to lawn and provides a safe and private space for children or pets, with a garden shed offering useful storage. To the front, there is allocated parking close to the property. This is a turnkey home in a sought-after area, combining modern living with excellent access to local amenities and transport links.
Full Details:
Energy Performance Certificate
Click here to view the Energy Efficiency Rating and Environmental Impact Rating for this property.
Viewing & Disclaimer:
Please contact us on 01738 26 00 35 if you wish to arrange a viewing appointment for this property, or require further information.
Possible Estate Agents - PH1 endeavour to maintain accurate depictions of properties in Virtual Tours, Floor Plans and descriptions, however, these are intended only as a guide and purchasers must satisfy themselves by personal inspection.

