Jeanfield Road, Perth, PH1
Offers over £300,000
4
1
2
Key Features:
- Traditional semi-detached home
- 3/4 bedrooms
- Bay-windowed living room
- Wood-burning stove
- Separate dining room
- Modern kitchen with units
- Rear family room with garden access
- Family bathroom with shower over bath
- Private, low-maintenance rear garden
- Convenient city location
Summary:
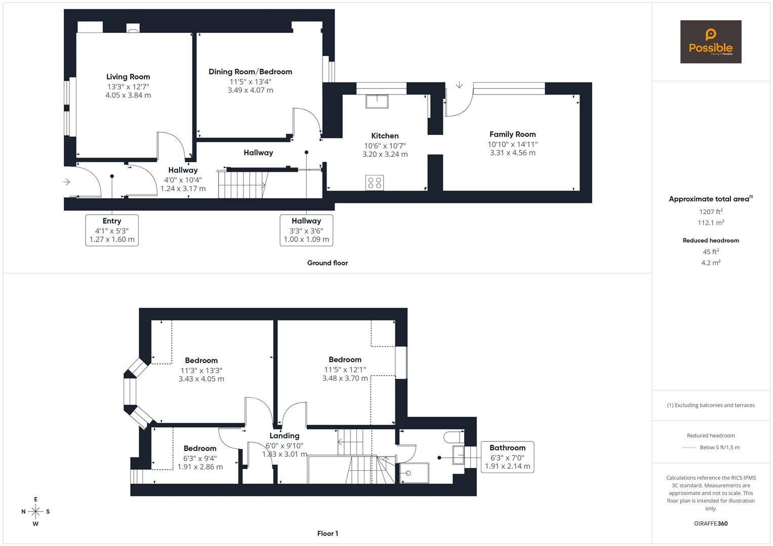
Located in a popular and convenient area of Perth, this attractive traditional home at 8 Jeanfield Road offers generous accommodation across two levels, blending character features with modern family living.The ground floor comprises a welcoming entrance hallway leading to a bright and spacious living room, complete with a bay window and feature fireplace with wood-burning stove. A separate dining room provides an excellent space for family meals and entertaining or can be used as an additional bedroom. To the rear, the well-appointed kitchen is fitted with contemporary units, ample worktop space and a range-style cooker, and opens through to a fantastic family room. This versatile space enjoys direct access to the garden and is ideal for everyday living. Upstairs, the property offers three bedrooms, including two well-proportioned doubles and a further single bedroom, perfect as a nursery, study or dressing room. Completing the accommodation is a modern shower room. The upper level retains a bright and airy feel, with attractive proportions and pleasant outlooks. Externally, there is a private rear garden laid mainly with gravel for ease of maintenance, along with a timber shed and seating areas. To the front, the property benefits from a small enclosed garden area with off-street parking available to the rear. This charming home will appeal to a wide range of buyers seeking character, space and a convenient location close to Perth city centre.
Full Details:
Energy Performance Certificate
Click here to view the Energy Efficiency Rating and Environmental Impact Rating for this property.
Viewing & Disclaimer:
Please contact us on 01738 26 00 35 if you wish to arrange a viewing appointment for this property, or require further information.
Possible Estate Agents - PH1 endeavour to maintain accurate depictions of properties in Virtual Tours, Floor Plans and descriptions, however, these are intended only as a guide and purchasers must satisfy themselves by personal inspection.

