Lapwing Drive, Perth, PH1
Offers over £225,000
(Sold Subject To Contract)
3
1
1
Key Features:
- Modern semi-detached house
- Bright and spacious living room
- Contemporary dining kitchen
- Three well-proportioned bedrooms
- Stylish family bathroom
- Ground floor WC
- Garage and driveway parking
- Generous corner plot
- Gas central heating
- Popular residential location
Summary:
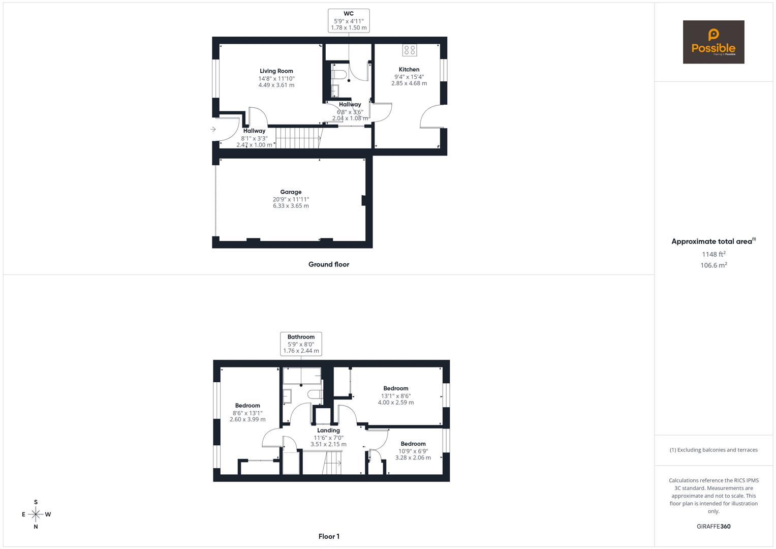
15 Lapwing Drive is a beautifully presented modern family home, located within a popular and well-established residential area on the outskirts of Perth. Offering generous accommodation over two levels, the property is finished to a high standard throughout and is ideal for families or those seeking flexible living space.The ground floor is centred around a bright and spacious living room, attractively styled and featuring large windows that allow plenty of natural light. The contemporary dining kitchen is well-appointed with modern units, integrated appliances and ample worktop space, with room for family dining and direct access to the rear garden-perfect for both everyday living and entertaining. A convenient WC and welcoming entrance hallway complete the ground floor. The garage provides excellent storage or potential for conversion, subject to permissions. Upstairs, the property offers three well-proportioned bedrooms, including a generous principal bedroom and two further flexible rooms suitable for family members, guests or home working. A stylish, modern family bathroom serves the upper level and is fitted with a quality suite. Externally, the home benefits from a neat front garden with driveway parking, while the fully enclosed rear and side garden offers a safe and private space for children, pets and outdoor entertaining. The garden is mainly laid to lawn with a paved seating area, making it both practical and low maintenance. This attractive home is presented in move-in condition and combines modern comfort with a convenient location close to excellent amenities, schooling and transport links.
Full Details:
Energy Performance Certificate
Click here to view the Energy Efficiency Rating and Environmental Impact Rating for this property.
Viewing & Disclaimer:
Please contact us on 01738 26 00 35 if you wish to arrange a viewing appointment for this property, or require further information.
Possible Estate Agents - PH1 endeavour to maintain accurate depictions of properties in Virtual Tours, Floor Plans and descriptions, however, these are intended only as a guide and purchasers must satisfy themselves by personal inspection.

