Lawers Place, Perth, PH1
Offers over £115,000
(Sold Subject To Contract)
2
1
1
Key Features:
- Two bedroom upper flat
- Private entrance with internal staircase
- Bright living room
- Modern fitted kitchen
- Bathroom with shower
- Double glazing
- Gas central heating
- Rear garden area
- Quiet residential location
- On-street parking
Summary:
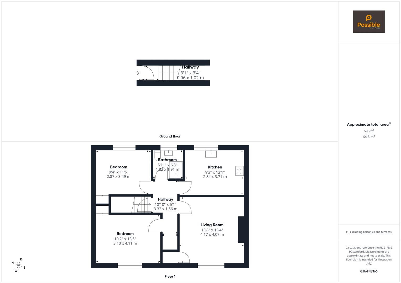
This well-presented two bedroom upper flat is located within a quiet residential area of Perth and offers comfortable, well laid out accommodation, ideal for first-time buyers, downsizers or buy-to-let investors.The property is accessed via its own private entrance, with stairs leading to the first-floor accommodation. A central hallway provides access to all main rooms. The living room is bright and welcoming, with space for lounge furniture and a large window allowing plenty of natural light. The kitchen is fitted with modern units and ample worktop space, with room for freestanding appliances, making it practical for everyday living. There are two bedrooms within the flat, both of good size. The main bedroom comfortably accommodates a double bed and storage, while the second bedroom is suitable as a child’s room, guest bedroom or home office. The bathroom is finished in neutral tiling and includes a shower enclosure, wash hand basin and WC, with a window providing natural light and ventilation. Externally, the flat benefits from access to a rear garden area, laid mainly to grass, providing space for outdoor use. On-street parking is available nearby. The property is well positioned for local shops, schools and public transport links, with Perth city centre easily accessible. This is a well maintained upper flat offering a practical layout in a convenient location.
Full Details:
Energy Performance Certificate
Click here to view the Energy Efficiency Rating and Environmental Impact Rating for this property.
Viewing & Disclaimer:
Please contact us on 01738 26 00 35 if you wish to arrange a viewing appointment for this property, or require further information.
Possible Estate Agents - PH1 endeavour to maintain accurate depictions of properties in Virtual Tours, Floor Plans and descriptions, however, these are intended only as a guide and purchasers must satisfy themselves by personal inspection.

