Maple Road, Perth, PH1
Offers over £190,000
(Sold Subject To Contract)
3
1
2
Key Features:
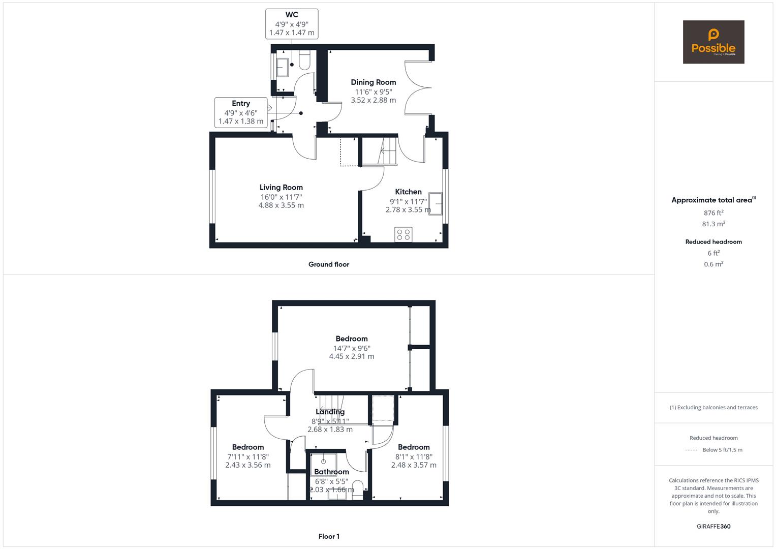
- Three-bedroom terraced family home
- Bright living room with front aspect
- Dining room with patio doors to the garden
- Fitted kitchen with good storage
- Ground-floor WC + family bathroom
- Built-in wardrobes in bedrooms
- Private driveway parking
- Low-maintenance front garden
- Tiered and landscaped rear garden
- Popular location close to amenities & travel links
Summary:
Set within a desirable residential area of Perth, 28 Maple Road is a well-proportioned three-bedroom terraced villa offering bright accommodation and excellent potential to modernise. The property features a spacious front-facing living room filled with natural light, leading through to a generous dining room with patio doors opening directly to the rear garden - ideal for indoor/outdoor living. The kitchen offers a good amount of workspace and units, with scope for upgrades to suit modern tastes. Upstairs, three well-sized bedrooms provide comfortable accommodation for families or professionals, each with fitted storage. The family bathroom completes the first floor. A convenient ground-floor WC adds further practicality. Externally, the property boasts a low-maintenance front garden and block-paved driveway parking. The rear garden is attractively landscaped with decorative planting and gravelled areas, perfect for relaxing or easy upkeep.This appealing home is ideally suited to first-time buyers, young families, or downsizers seeking a property they can personalise. With schools, shops, leisure facilities and commuter links nearby, this is a fantastic opportunity in a well-connected and popular part of Perth.
Full Details:
Energy Performance Certificate
Click here to view the Energy Efficiency Rating and Environmental Impact Rating for this property.
Viewing & Disclaimer:
Please contact us on 01738 26 00 35 if you wish to arrange a viewing appointment for this property, or require further information.
Possible Estate Agents - PH1 endeavour to maintain accurate depictions of properties in Virtual Tours, Floor Plans and descriptions, however, these are intended only as a guide and purchasers must satisfy themselves by personal inspection.

