Mercer Street, Perth, PH1
Offers over £245,000
(Sold Subject To Contract)
3
2
1
Key Features:
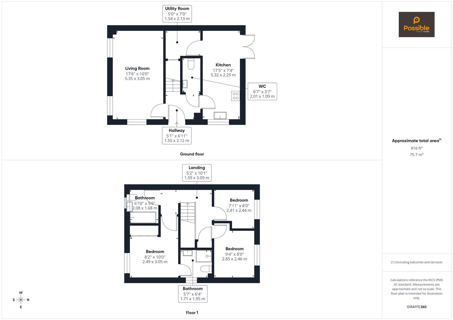
- Modern three-bedroom home
- Bright and spacious living room
- Contemporary dining kitchen
- Utility room and ground-floor WC
- Stylish family bathroom
- Neutral décor throughout
- Enclosed, landscaped rear garden
- Gas central heating & double glazing
- Move-in ready condition
- Off-street parking
Summary:
This beautifully presented modern home is set within a popular residential area and offers well-proportioned, flexible accommodation ideal for families, couples, professionals, or first-time buyers. Finished in neutral tones throughout, the property is move-in ready and designed for comfortable modern living.The ground floor opens with a welcoming hallway leading into a bright and spacious living room, enhanced by contemporary décor and generous natural light. To the rear, the stylish dining kitchen provides ample storage and worktop space, with integrated appliances and direct access to the rear garden, making it ideal for everyday living and entertaining. A convenient ground-floor WC and a useful utility room complete the lower level. Upstairs, the property offers three well-sized bedrooms, each presented in excellent condition and suitable for a range of uses including guest accommodation or home office space. The principal bedroom benefits from an en-suite shower room. A modern family bathroom completes the upper floor, fitted with quality sanitary ware and a clean, contemporary finish. Externally, the enclosed rear garden is thoughtfully landscaped with a combination of lawn and paved areas, providing a safe and private space for relaxing or outdoor dining. The front of the property enjoys a neat streetscape with off-street parking. This attractive home combines modern design, practical layout, and a convenient location, making it an excellent opportunity for buyers seeking a stylish and low-maintenance property in Perth.
Full Details:
Energy Performance Certificate
Click here to view the Energy Efficiency Rating and Environmental Impact Rating for this property.
Viewing & Disclaimer:
Please contact us on 01738 26 00 35 if you wish to arrange a viewing appointment for this property, or require further information.
Possible Estate Agents - PH1 endeavour to maintain accurate depictions of properties in Virtual Tours, Floor Plans and descriptions, however, these are intended only as a guide and purchasers must satisfy themselves by personal inspection.

