Murray Place, Perth, PH1
Offers over £320,000
(Sold Subject To Contract)
3
2
2
Key Features:
- Attractive detached home
- Sought-after residential location in Perth
- Spacious living room with bay window/patio doors
- Separate dining room with sunroom
- Gas central heating and double glazing
- Well-equipped kitchen with adjacent utility area
- Three well-proportioned bedrooms
- Family bathroom and shower room
- Very private rear garden
- Garage and driveway parking
Summary:
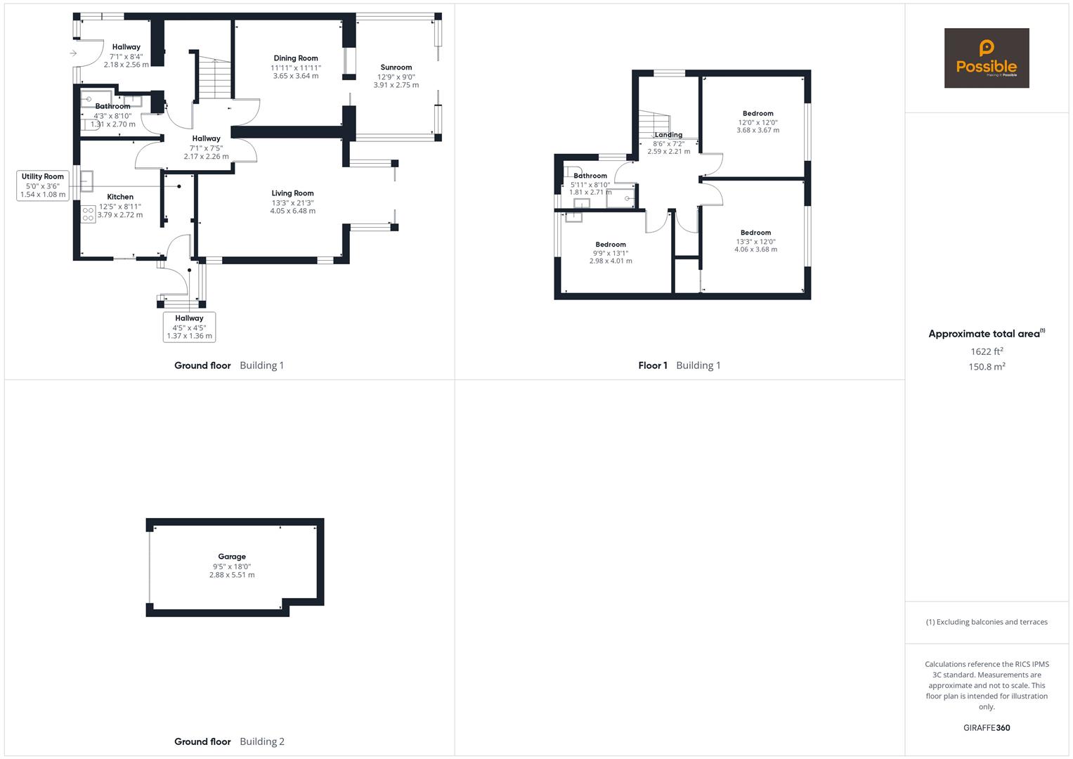
Located within a highly desirable residential area of Perth, 6 Murray Place is an attractive and generously proportioned three bedroom detached home offering flexible accommodation, attractive gardens and excellent living space.The ground floor welcomes you with a bright entrance hallway leading through to a spacious living room, filled with natural light from a bay window/patio doors overlooking the garden. This comfortable and inviting space provides an ideal setting for relaxing or entertaining. A separate dining room offers ample room for family meals and gatherings and connects directly to a bright sunroom which enjoys views over the rear garden and provides access to the outdoor patio area. The kitchen is well arranged with a range of fitted units, good workspace and a practical layout. A useful pantry area sits adjacent, providing additional storage. There is also a handy downstairs shower room. Upstairs, the property offers three well-proportioned bedrooms, including a particularly spacious principal bedroom with pleasant open outlooks. A family bathroom completes the upper floor accommodation. Externally, the property benefits from colourful garden grounds with areas of lawn, patio and established planting creating a private and peaceful outdoor space. A garage and driveway provide excellent parking and storage. This appealing home offers generous accommodation and excellent potential in a sought-after Perth location.
Full Details:
Energy Performance Certificate
Click here to view the Energy Efficiency Rating and Environmental Impact Rating for this property.
Viewing & Disclaimer:
Please contact us on 01738 26 00 35 if you wish to arrange a viewing appointment for this property, or require further information.
Possible Estate Agents - PH1 endeavour to maintain accurate depictions of properties in Virtual Tours, Floor Plans and descriptions, however, these are intended only as a guide and purchasers must satisfy themselves by personal inspection.

