Muir Bank, Perth, PH2
Offers over £285,000
(Sold Subject To Contract)
3
1
1
Key Features:
- Attractive detached bungalow
- Three well-proportioned bedrooms
- Bright and spacious living room
- Modern fitted kitchen
- Separate utility room
- Contemporary shower room
- Generous garden
- Large driveway with ample parking
- Enclosed rear garden with patio
- Ideal for families or downsizers
Summary:
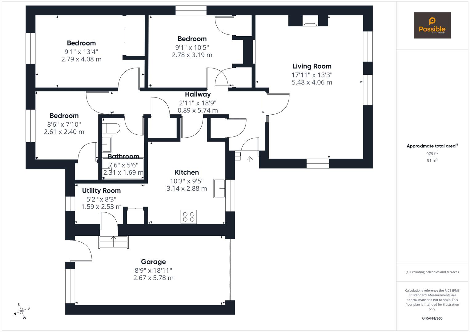
This well-presented detached bungalow at 7 Muir Bank offers spacious, flexible accommodation in a sought-after residential area of Scone. Set on a generous plot with a large driveway and integral garage, the property is ideal for families, downsizers or those seeking single-level living.The welcoming hallway provides access to all principal rooms. To the front, a bright and generously proportioned living room enjoys excellent natural light and offers ample space for both relaxation and entertaining. The modern fitted kitchen is well laid out with a range of wall and base units, complementary worktops and space for appliances, with convenient access to the utility room and rear garden. There are three comfortable bedrooms, all well-proportioned and suitable for a variety of uses including guest accommodation or home office space. The contemporary shower room is stylishly finished with a large walk-in enclosure and quality fittings. Externally, the property benefits from a substantial gravel driveway providing off-street parking for multiple vehicles and access to the garage. The enclosed rear garden offers a combination of lawn and patio space, ideal for outdoor dining, children or pets, with established hedging providing privacy. This attractive home combines practical layout, generous outdoor space and a peaceful setting, making it a superb opportunity in a highly desirable location.
Full Details:
Energy Performance Certificate
Click here to view the Energy Efficiency Rating and Environmental Impact Rating for this property.
Viewing & Disclaimer:
Please contact us on 01738 26 00 35 if you wish to arrange a viewing appointment for this property, or require further information.
Possible Estate Agents - PH1 endeavour to maintain accurate depictions of properties in Virtual Tours, Floor Plans and descriptions, however, these are intended only as a guide and purchasers must satisfy themselves by personal inspection.

