Spoutwells Drive, Perth, PH2
Offers over £320,000
(Sold Subject To Contract)
4
1
2
Key Features:
- Four-bedroom detached family home
- Bright lounge with feature fireplace
- Separate dining room with garden views
- Kitchen with ample storage
- Stylish modern shower room plus WC upstairs
- Two ground floor bedrooms, two upstairs
- Generous driveway and attached garage
- Private, enclosed rear garden with lawn
- Flexible layout for family living
- Sought-after Scone location close to Perth
Summary:
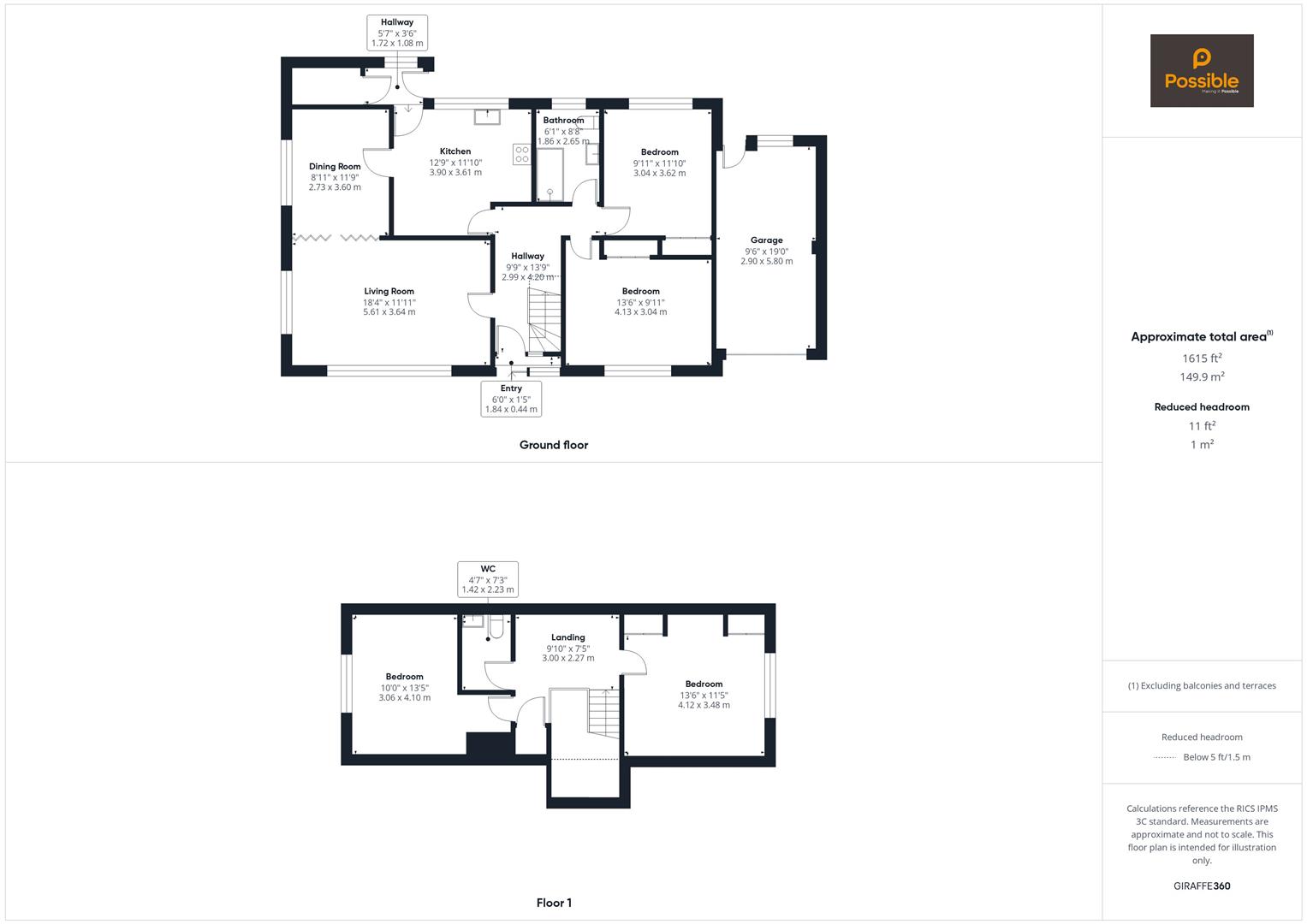
10 Spoutwells Drive is a spacious and versatile four-bedroom detached family home, located in the sought-after village of Scone. This well-presented property offers flexible accommodation across two floors, combining generous living spaces with practical family features.On the ground floor, a welcoming hallway leads into a bright lounge with feature wood burning stove and large front window, creating a warm and inviting atmosphere. The separate dining room is ideal for entertaining, while the kitchen offers ample storage, worktop space, and a central island. The ground floor also provides two well-proportioned bedrooms and a stylish modern shower room. Upstairs, the home continues to impress with two further spacious double bedrooms and a convenient WC. Each bedroom is tastefully presented and benefits from excellent natural light. Externally, the property sits on a generous plot with a neatly landscaped front garden, driveway with space for multiple vehicles, and an attached garage. The fully enclosed rear garden offers a safe and private outdoor retreat, featuring a lawn and seating areas for relaxation or family play. This property is perfect for families looking for a versatile home in a peaceful setting, while still being close to local amenities, schools, and transport links into Perth and beyond.
Full Details:
Energy Performance Certificate
Click here to view the Energy Efficiency Rating and Environmental Impact Rating for this property.
Viewing & Disclaimer:
Please contact us on 01738 26 00 35 if you wish to arrange a viewing appointment for this property, or require further information.
Possible Estate Agents - PH1 endeavour to maintain accurate depictions of properties in Virtual Tours, Floor Plans and descriptions, however, these are intended only as a guide and purchasers must satisfy themselves by personal inspection.

