Strathtay Road, Perth, PH1
Offers over £150,000
(Sold Subject To Contract)
2
1
1
Key Features:
- Superb End-terraced house
- Two well-proportioned double bedrooms
- Bright and spacious living room
- Stylish fitted kitchen
- Contemporary shower room
- Double glazing throughout
- Gas central heating
- Generous enclosed rear garden
- Presented in excellent condition
- Popular residential location
Summary:
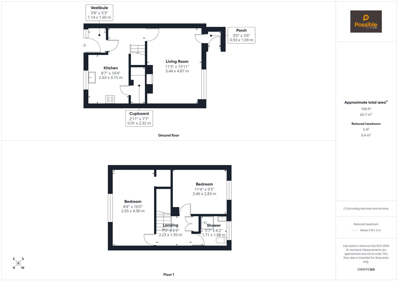
53 Strathtay Road is a superb end-terraced home offering bright, modern accommodation set within a popular residential area of Perth. Beautifully styled and upgraded throughout, the property is arranged over two levels and is ideally suited to first-time buyers, couples or young families.The ground floor comprises a welcoming vestibule leading into a stylish kitchen which is well laid out with ample storage and worktop space plus a large understair storage cupboard. The spacious living room, finished in neutral tones provides a comfortable space for relaxing or entertaining. Upstairs, there are two well-proportioned double bedrooms, both benefiting from excellent natural light, along with a stylish contemporary shower room finished to a high standard. Storage is well provided throughout the home. Externally, the property enjoys a generous rear garden laid mainly to lawn, offering an excellent outdoor space for relaxing or entertaining. To the front, there is an area of garden ground and on-street parking nearby with additional off-street parking to the rear including a wooden garage. This highly attractive home offers move-in-ready accommodation in a convenient location.
Full Details:
Energy Performance Certificate
Click here to view the Energy Efficiency Rating and Environmental Impact Rating for this property.
Viewing & Disclaimer:
Please contact us on 01738 26 00 35 if you wish to arrange a viewing appointment for this property, or require further information.
Possible Estate Agents - PH1 endeavour to maintain accurate depictions of properties in Virtual Tours, Floor Plans and descriptions, however, these are intended only as a guide and purchasers must satisfy themselves by personal inspection.

