Thriepland Wynd, Perth, PH1
Offers over £135,000
(Sold Subject To Contract)
2
1
1
Key Features:
- Two-bedroom semi-detached villa
- Bright and spacious lounge
- Functional kitchen with garden access
- Family bathroom with shower over bath
- Two double bedrooms, one with mirrored wardrobes
- Generous private rear garden with lawn and shed
- Off-street parking via driveway
- Popular and peaceful cul-de-sac setting
- Close to schools, shops, and amenities
- Ideal for first-time buyers, downsizers, or investors
Summary:
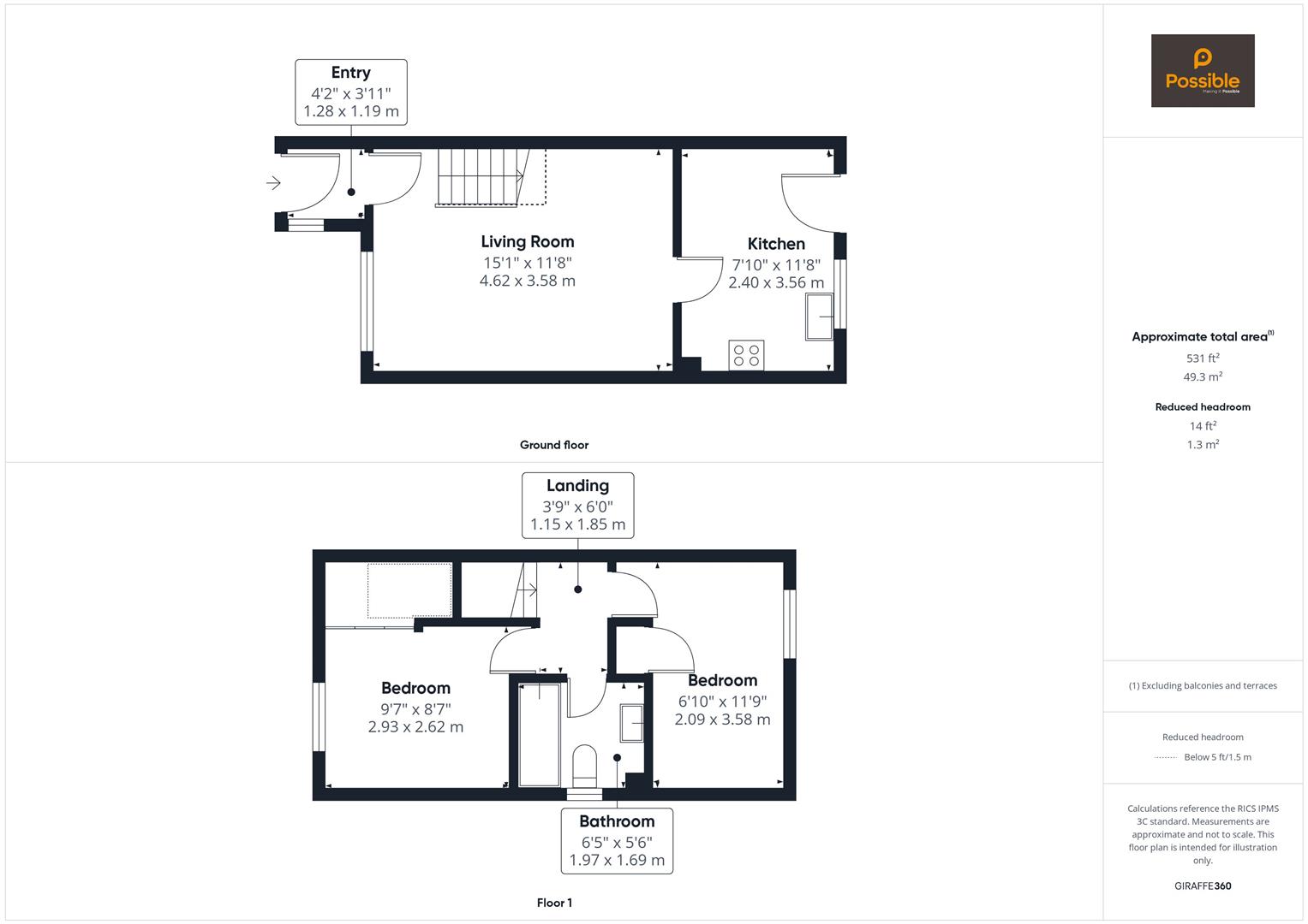
9 Thriepland Wynd is a two-bedroom semi-detached villa located within a popular residential area of Perth. Offering a bright interior and generous outdoor space, this home represents an excellent opportunity for first-time buyers, downsizers, or investors.The ground floor is centred around a spacious lounge, which enjoys good natural light from the front aspect window and features a modern staircase leading to the upper level. To the rear, the kitchen offers a practical layout with ample units and worktop space, along with direct access to the garden. Upstairs, there are two well-proportioned bedrooms, both neutrally finished and one benefitting from fitted mirrored wardrobes. The family bathroom is fitted with a white three-piece suite and shower over bath. Externally, the property includes a generous rear garden with lawn, patio, and garden shed, offering excellent potential for outdoor living. To the front, there is a monoblock driveway providing off-street parking. Well-positioned in a quiet cul-de-sac, the home enjoys a peaceful setting while being close to local schools, shops, and transport links into Perth city centre and beyond. With scope for personalisation, 9 Thriepland Wynd offers a superb chance to create a welcoming home to suit individual tastes.
Full Details:
Energy Performance Certificate
Click here to view the Energy Efficiency Rating and Environmental Impact Rating for this property.
Viewing & Disclaimer:
Please contact us on 01738 26 00 35 if you wish to arrange a viewing appointment for this property, or require further information.
Possible Estate Agents - PH1 endeavour to maintain accurate depictions of properties in Virtual Tours, Floor Plans and descriptions, however, these are intended only as a guide and purchasers must satisfy themselves by personal inspection.

