Main Street, Bridge Of Earn, PH2
Offers over £399,950
(SOLD)
5
2
1
Key Features:
- Superb detached villa
- 4/5 bedrooms 1 en-suite
- Large lounge
- Stunning dining kitchen & snug
- Generous rear garden
- Recently fully modernised and renovated
- Gas central heating
- Double glazing
- Off-street parking
- Easy access to M90 & amenities
Summary:
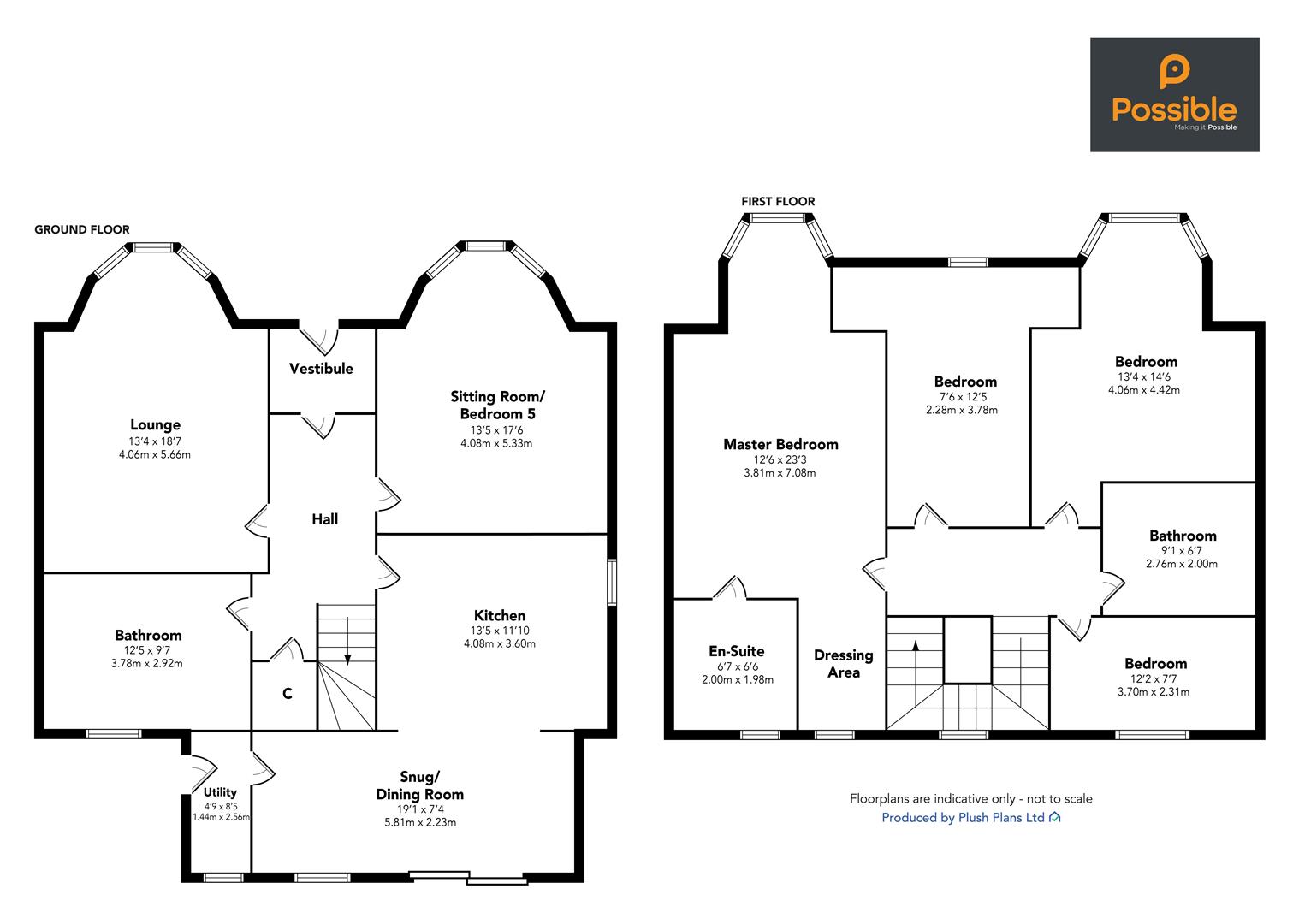
This stunning 4/5 bedroom villa has recently undergone significant renovation and a complete transformation into a unique, stylish home. Located in the sought-after Perthshire village of Bridge of Earn, the property has been sympathetically and skilfully styled to strike an almost perfect balance between new and old, contemporary and traditional. A great amount of effort has gone into retaining a definite sense of character and reusing many original features such as doors, facings, skirtings and even stone to form a new boundary wall to the front. The programme of works includes new gas central heating system and radiators, rewiring of electrics, plastering of walls, a stunning new kitchen/diner/snug with bi-folding doors, new bathrooms and landscaping of all garden grounds to name but a few.The ground floor consist of an entrance vestibule with mosaic tile flooring, a most impressive reception hall, elegant lounge, a large sitting room/bedroom, stylish kitchen with open access into a dining area and snug, separate utility room and a large four-piece bathroom. On the first floor there is a bright landing, a large master bedroom with en-suite shower room and dressing area, a further bathroom and three additional double bedrooms. To the front of the property there is a new monobloc driveway providing off-street parking and an area of lawn. The garden to the rear is very private and enclosed by fencing and stone wall. It also features a lovely patio and lawn.
Full Details:
Energy Performance Certificate
Click here to view the Energy Efficiency Rating and Environmental Impact Rating for this property.
Viewing & Disclaimer:
Please contact us on 01738 26 00 35 if you wish to arrange a viewing appointment for this property, or require further information.
Possible Estate Agents - PH1 endeavour to maintain accurate depictions of properties in Virtual Tours, Floor Plans and descriptions, however, these are intended only as a guide and purchasers must satisfy themselves by personal inspection.

